A professional supplier for sandwich panel and prefab house
Foshan YAJ Building Co.,Ltd
E-mail: yaj@yajbuilding.com
86-13760920214
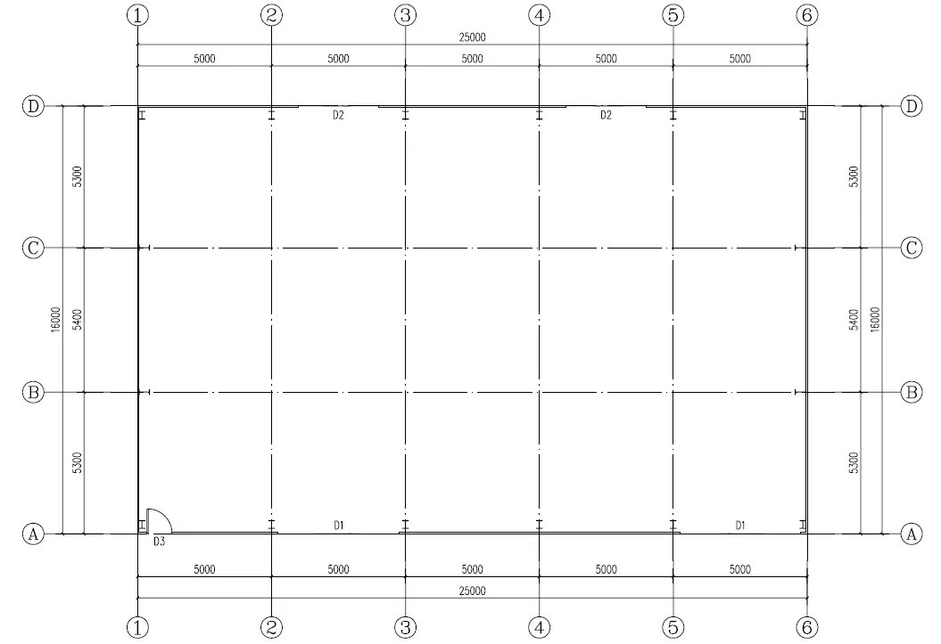
Cyclone design prefabricated steel structure shed 25mx16mx5.5m main materials:
1. Hot dip galvanized steel structure
2. Galvanizd bolts and tapping screw
3.Color Zinc Aluminized steel sheet for wall and roof panel
4. ventilation balls on roof
5. Sliding steel door
6. Stainless gutter and PVC downspout
Remark: Wind rate 220kph, service life up to 25years



