A professional supplier for sandwich panel and prefab house
Foshan YAJ Building Co.,Ltd
E-mail: yaj@yajbuilding.com
86-13760920214

Brunei 34 sets of detachable container bathrooms, container office, and container kitchen were finished. Congratulations!!!
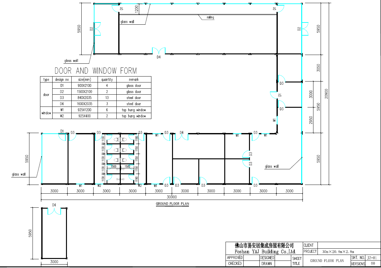
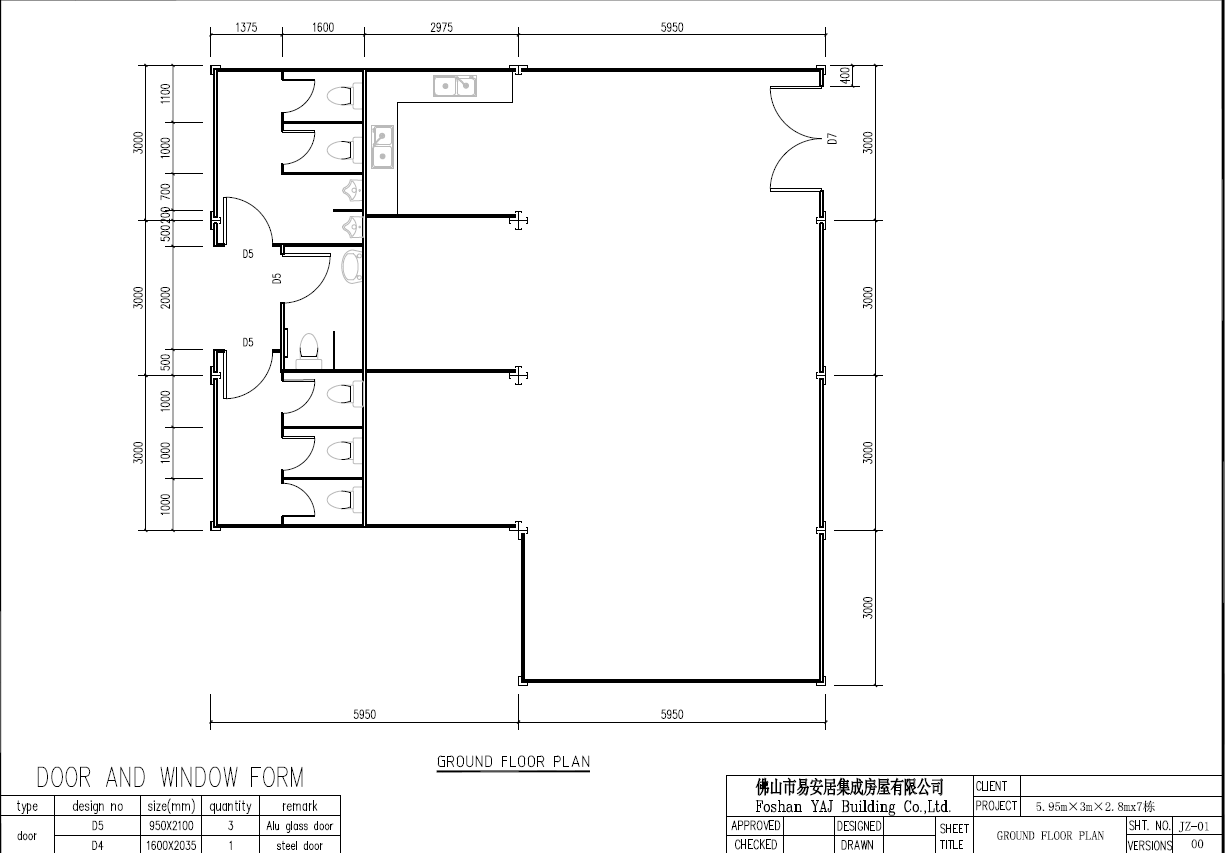
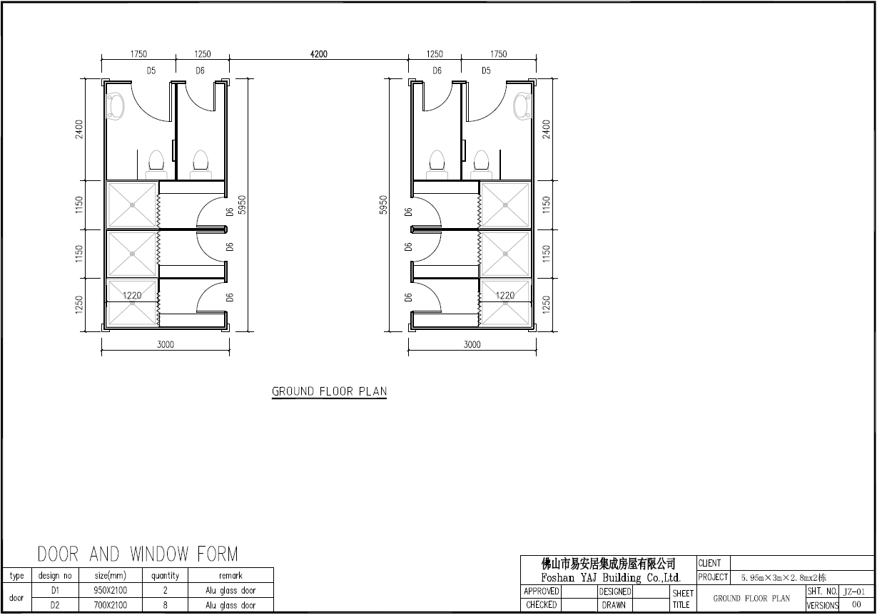
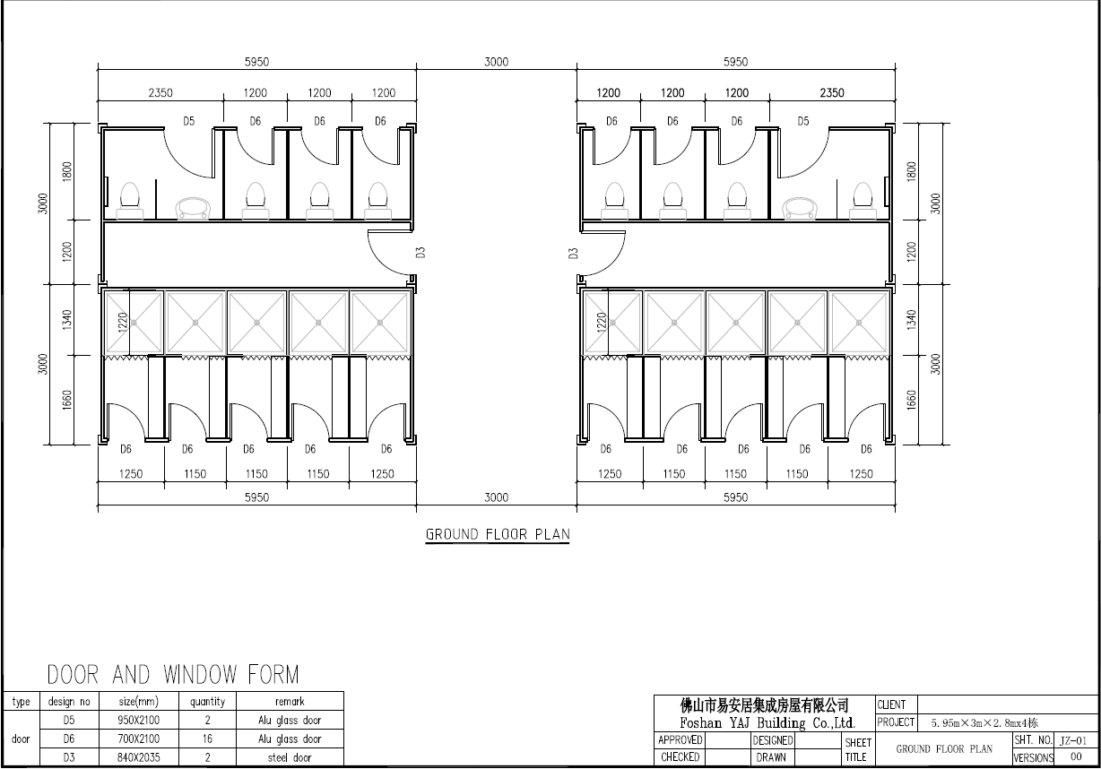
They are made of modular container house size 5.95m×3m×2.8m, flexible combination for different layouts, and also can be stackable up to 3 floors if needed.
Below is the project plan for your reference.
Container Office Drawing

Container Kitchen drawing

Container Bathroom Drawing

